Гильотинное остекление

Плюсы безрамного остекления
  • панорамный вид без лишних перегородок
  • защита от ветра и осадков, меньше пыли
  • удобное открывание под ваш сценарий (раздвижное, складное, гильотинное)
  • прочные закалённые стёкла и надёжная фурнитура
  • точная подгонка, аккуратные узлы, профессиональный монтаж
Гильотинное остекление в Москве | Услуги, цены и заказ изделий из закаленного стекла
Гильотинное остекление в Москве | Услуги, цены и заказ изделий из закаленного стекла
Гильотинное остекление в Москве | Услуги, цены и заказ изделий из закаленного стекла
Гильотинное остекление в Москве | Услуги, цены и заказ изделий из закаленного стекла
Гильотинное остекление в Москве | Услуги, цены и заказ изделий из закаленного стекла

Описание

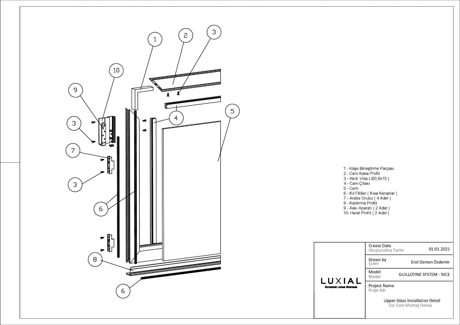
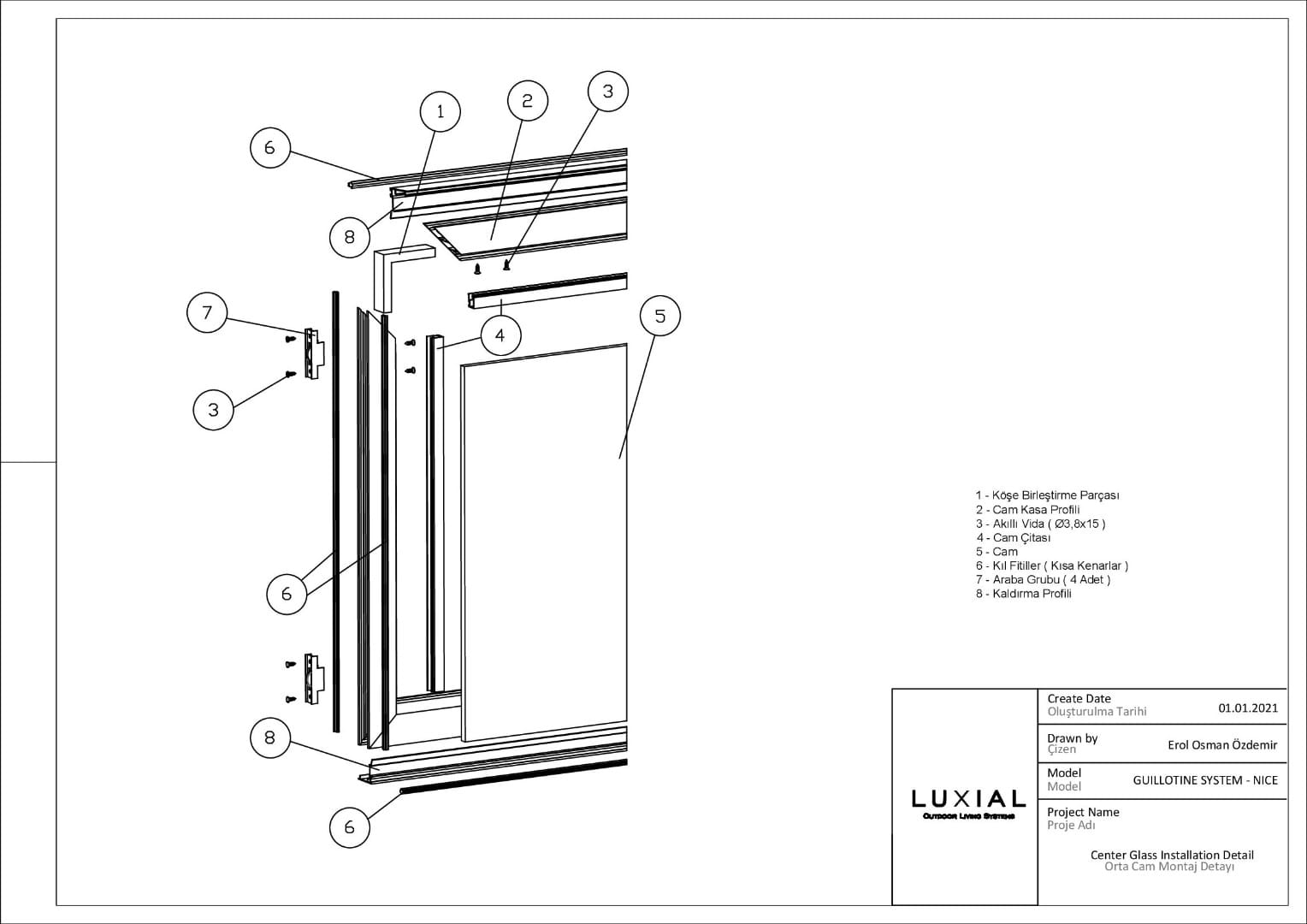
Гильотинное остекление — это современная автоматическая система, где стеклянные створки перемещаются вертикально: поднимаются и опускаются по направляющим с помощью электропривода. Конструкция формируется из 2, 3 или 4 горизонтальных секций, что позволяет выбрать оптимальную высоту открывания и сценарии проветривания под конкретный объект.

Конструкция и материалы 

Для производства гильотинных систем применяются прочные и долговечные материалы:

  • алюминиевый профиль (жёсткость, лёгкость, стабильность геометрии);

  • нержавеющая сталь (надежность узлов и крепежа, стойкость к коррозии);

  • закалённое стекло или стеклопакет — в зависимости от требований к теплоизоляции и шумоизоляции.

За счёт вертикального хода створок гильотинное остекление выглядит аккуратно и «дорого», создаёт эффект панорамного окна и добавляет пространству современный архитектурный акцент.

Преимущества гильотинного остекления

Такие системы ценят за сочетание эстетики, безопасности и комфорта:

  • Панорамный вид и максимум света — никаких лишних перегородок в зоне обзора, визуальная лёгкость конструкции.

  • Надёжная защита — прочное стекло и жёсткая профильная система повышают устойчивость к механическим воздействиям и усложняют несанкционированный доступ.

  • Герметичность и защита от непогоды — система рассчитана на эксплуатацию на открытых пространствах и защищает от ветра, дождя и снега.

  • Удобное управление — створки приводятся в движение мотором, управление выполняется с пульта (и/или настенной кнопкой — в зависимости от комплектации).

  • Комфорт для зон отдыха — решение отлично подходит для веранды, террасы, беседки, а также для летних площадок кафе и ресторанов: можно быстро открыть проём для воздуха или закрыть помещение при ухудшении погоды.

Где используют гильотинные окна

Гильотинное остекление чаще всего устанавливают там, где важны панорама и быстрый контроль открывания: 

  • террасы и веранды частных домов;

  • беседки и зоны барбекю;

  • кафе, рестораны, лаунж-зоны и летние площадки;

  • помещения с панорамными проёмами, где нужен «эффект витрины».

Заказать гильотинное остекление в ДомГласс

В ДомГласс можно заказать гильотинное остекление под ваш проём: подберём конфигурацию створок, тип стекла (закалённое или стеклопакет), вариант управления и комплектацию под задачи объекта. Изготовление возможно по индивидуальным размерам с учётом конструктивных особенностей помещения.

Оставьте заявку на сайте glass-store.ru — мы свяжемся с вами, уточним параметры и подготовим предварительный расчёт стоимости, а также ответим на все технические вопросы по монтажу и эксплуатации.

Характеристики

Получите персональное коммерческое предложение за пару кликов!

Ознакомиться с ассортиментом и ценой изделий вы можете оставив заявку
Image Image

Другие похожие услуги

Ознакомьтесь со всеми услугами нашей компании по созданию стильных интерьерных решений.
Гильотинное остекление в Москве | Услуги, цены и заказ изделий из закаленного стекла
Закалка стекла
Закалка стекла в Москве производится путем нагрева обычного листового стекла до температуры плавления и резкого его охлаждения.
Перейти
Гильотинное остекление в Москве | Услуги, цены и заказ изделий из закаленного стекла
Безопасное стекло
Закаленное стекло широко используется в создании фасадов зданий, перегородок в офисах и торговых центрах, а также мебели и декоративных элементов интерьера.
Перейти
Гильотинное остекление в Москве | Услуги, цены и заказ изделий из закаленного стекла
Закаленное стекло для душевой
Использование закаленного стекла для душевой кабины в качестве ограждений и перегородок — современное дизайнерское решение для ванной комнаты.
Перейти
Гильотинное остекление в Москве | Услуги, цены и заказ изделий из закаленного стекла
Закаленное стекло для стола
Закаленное стекло — материал, обладающий высокой прочностью и устойчивостью к температурным перепадам.
Перейти

Ответы на часто задаваемые вопросы

Что такое закалка стекла?

Закалка стекла — процесс термической обработки, при котором стекло нагревают до 600-700 ℃, а затем резко охлаждают. Благодаря закалке материала стекло становится прочнее в 5 раз.

Можно ли разбить стекло закаленное?

Разбить его достаточно сложно из-за высокой прочности. Если это все-таки произошло, то разбитое каленое стекло рассыпается на мелкие кусочки с тупыми краями, не способными причинить травму.

Можно ли резать или сверлить закаленное стекло?

Нет, этого сделать не получится. Все манипуляции должны быть проделаны до закалки стекла.

Как ухаживать за закаленным стеклом?

Материал прост в уходе. Для удаления пыли советуем использовать мягкую влажную тряпку или губку. При наличии пятен или загрязнений можно воспользоваться мыльным раствором или средством для мойки стекол, после чего аккуратно протереть поверхность сухой тряпкой для избежания разводов.

Следует избегать использования абразивных материалов (щеток, жестких губок) и агрессивных химических веществ, которые могут оставить царапины на поверхности.

Могу ли я сделать заказ с индивидуальным дизайном?

Да, конечно! Наша компания с радостью воплотит любые ваши задумки, включая выбор цвета, текстур и изображения.

Преимущества нашей компании:

Компания DomGlass приглашает к долгосрочному сотрудничеству и предлагает купить безопасное закаленное стекло и другие изделия на выгодных условиях.
Подробная консультация со специалистом
Подробная консультация со специалистом
Оформление заявки за 1 час
Оформление заявки за 1 час
Индивидуальный подход к каждому клиенту
Индивидуальный подход к каждому клиенту
Высококачественные материалы и новейшее оборудование
Высококачественные материалы и новейшее оборудование
Своевременная доставка до объекта
Своевременная доставка до объекта
Высокое качество продукции
Высокое качество продукции
Приемлемые цены
Приемлемые цены
Нужна помощь специалиста?
Оставьте свой номер телефона, и мы обязательно скоро перезвоним.

Завод по обработке стекла предлагает услуги:

Безрамное раздвижное
Безрамное раздвижное

Безрамное раздвижное остекление

Узнать подробнее
Безрамное складное остекление
Безрамное складное остекление

Безрамное складное остекление

Узнать подробнее
Гильотинное остекление
Гильотинное остекление

Гильотинное остекление

Узнать подробнее
Russian English Chinese Turkish